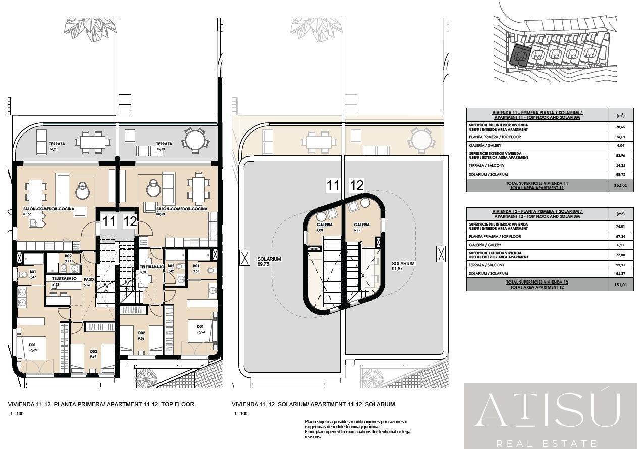
En La mata-la manguilla, con 151 m² construidos, 2 dormitorios, 2 baños, piscina privada
Bungalows de Obra Nueva con Vistas al Mar en La Mata, TorreviejaUbicación Privilegiada a 300 Metros de la PlayaEste exclusivo residencial de obra nueva se encuentra en La Mata, Torrevieja, una de las zonas más codiciadas de la Costa Blanca. A solo 300 metros de la playa, esta promoción ofrece un entorno natural excepcional con vistas panorámicas al mar y fácil acceso a todos los servicios esenciales.La Mata es una zona vibrante con un encanto especial, rodeada de paseos marítimos, restaurantes, cafeterías y supermercados, lo que la convierte en el destino perfecto tanto para vivir todo el año como para disfrutar de una segunda residencia junto al mar.Diseño Moderno y Eficiencia EnergéticaEste residencial destaca por su elegante arquitectura mediterránea con un toque vanguardista. Diseñado bajo el estándar Passivhaus, garantiza una construcción sostenible que proporciona máximo confort térmico y eficiencia energética, reduciendo el consumo y el impacto ambiental.Las viviendas cuentan con acabados de alta calidad, espacios amplios y abundante luz natural, logrando un equilibrio perfecto entre diseño y funcionalidad.Opciones de Vivienda para Todos los Estilos de VidaApartamentos en planta baja con gran jardín privado con vistas al mar y espacio suficiente para una piscina privada. Además, incluyen un semisótano con la posibilidad de añadir dormitorios adicionales.Apartamentos en planta alta con amplio balcón, solárium privado y espectaculares vistas al mar, perfectos para disfrutar del sol mediterráneo.Exclusivas Zonas ComunesEste residencial ofrece espacios diseñados para el confort y la relajación:Piscina infinita comunitaria, ideal para refrescarse con vistas panorámicas.Plaza de parking subterráneo incluida en cada vivienda.Proximidad a Puntos de InterésPlaya de La Mata 300 m.Centro de Torrevieja 6 km.Parque Natural de las Lagunas de La Mata-Torrevieja 2 km.Campo de Golf La Marquesa 15 km.Aeropuerto de Alicante 40 km (aprox. 40 min).Aeropuerto de Murcia 65 km (aprox. 1 hora).Su Hogar en la Costa Blanca le EsperaSi busca un apartamento de lujo con vistas al mar, en una ubicación privilegiada y con todas las comodidades, este residencial es su mejor opción. Contáctenos hoy mismo para más información y concertar una visita.
