Venta de villa en Monforte del cid, Alenda golf

Referencia:

N7356

Villa en venta

Monforte del cid, Alenda golf MAPA DE PROPIEDADES

320.000 € (impuestos y gastos no incluídos)
145 m2
3
2
Descripción

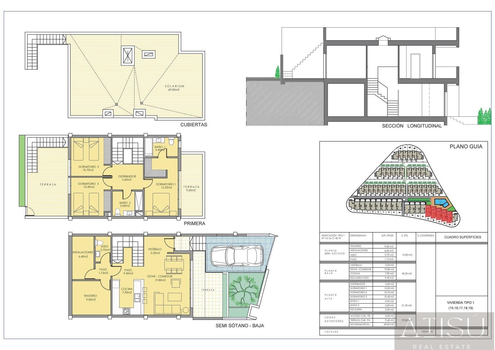
Villa en Alenda golf, con 145 m² construidos, 120 m² metros de parcela, 3 dormitorios, 2 baños, piscina privada

ADOSADOS DE OBRA NUEVA EN MONFORTE DEL CID Promoción de obra nueva de 54 adosados y pareados en Monforte del Cid. Amplias viviendas de 3 dormitorios, 2 baños y 1 aseo. Todas las viviendas disponen de jardín privado en la parcela, zona de solarium y plaza de garaje. Las viviendas disponen de aerotermia completa, un sistema de energía renovable que aprovecha la energía ambiental externa. Cada propiedad ha sido meticulosamente diseñada para proporcionarle el máximo confort y funcionalidad. Además, los espaciosos interiores combinan a la perfección con las zonas exteriores. Imagínese relajándose en su propia terraza mientras admira el campo de golf y disfruta de la tranquilidad que se merece. Los residentes de esta urbanización tendrán acceso exclusivo a una amplia gama de servicios de primera clase. Disfrute de refrescantes chapuzones en la piscina comunitaria, mantenga su cuerpo en forma en el gimnasio totalmente equipado y disfrute de un refrescante baño. Sumérjase en un estilo de vida de lujo y disfrute de la serenidad que sólo Alenda Golf puede ofrecerle. Estos modernos y elegantes bungalows están estratégicamente situados en un impresionante entorno natural, rodeados de exuberante vegetación y con vistas panorámicas al campo de golf. Urbanización privada cercana a las principales ciudades de la provincia de Alicante, a 15 minutos en coche de Elche y Alicante, así como del aeropuerto y de las mejores playas. La urbanización se encuentra en un entorno tranquilo cerca del campo de golf Alenda en Monforte del Cid.

Características
Inmueble
  • 145 M2 Construidos
  • 120 M2 Metros de parcela
  • 3 Dormitorios
  • 2 Baños
Edificio
Extras
  • Piscina privada
Certificado energético
certificado energético
Simulador de hipoteca
Precio inmueble
Impuestos y gastos
Precio + gastos
0 €
Ahorro aportado
Plazo en años
Interés
Tu cuota mensual
0
Estos resultados son orientativos, calculados con los números que has introducido.
MAPA DE PROPIEDADES
Otros inmuebles que podrían ser de su interés

Atisú Inmobiliaria, agencia especializada en la Costa Blanca

Esta página web utiliza cookies

Una cookie informática es un pequeño archivo de información que se guarda en tu navegador cada vez que visitas nuestra página web.

Nuestra página web utiliza entre otras, cookies técnicas que son imprescindibles para que la página pueda funcionar. Las tenemos activadas por defecto, pues no necesitan de tu autorización.

Más información en nuestro apartado POLÍTICA DE COOKIES.