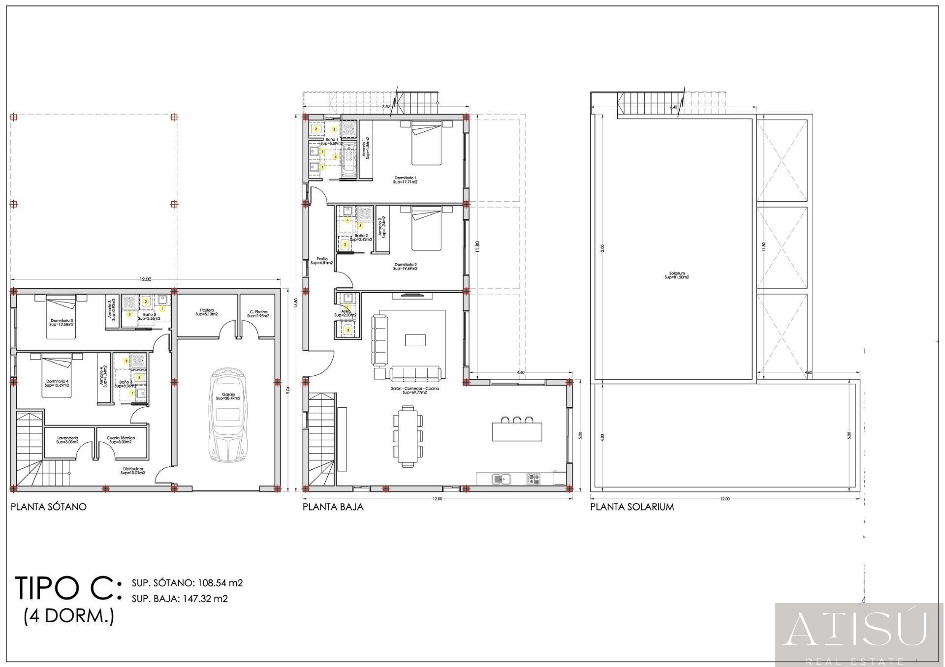
Villa en Golf bahia, con 255 m² construidos, 501 m² metros de parcela, 4 dormitorios, 4 baños, piscina privada
Villas de lujo de nueva construcción en Finestrat, cerca de Benidorm Colección exclusiva de villas independientes sostenibles Esta prestigiosa promoción cuenta con 36 villas independientes en la codiciada urbanización Bahía Golf, en Finestrat, a solo 3,5 km de la costa mediterránea. Diseñadas para combinar lujo, comodidad y sostenibilidad, estas modernas viviendas ofrecen un estilo de vida excepcional en la Costa Blanca, rodeadas de naturaleza pero cerca de todos los servicios. Cada villa cuenta con 3 o 4 amplios dormitorios, jardines privados y una piscina infinita privada. Algunas viviendas disfrutan de impresionantes vistas al mar, mientras que todas ellas se encuentran en generosas parcelas de más de 500 m2 con superficies construidas a partir de 222 m2. Distribuciones flexibles con sótano y solárium en la azotea Los compradores pueden elegir entre cuatro distribuciones diferentes, todas ellas cuidadosamente diseñadas para maximizar el espacio y la luz natural. Todas las villas incluyen un sótano con aparcamiento privado, trastero, lavadero y dos dormitorios con baños en suite conectados a un patio inglés para aprovechar la luz natural y la ventilación. La planta baja cuenta con uno o dos dormitorios adicionales con baño en suite, un aseo de invitados y una cocina abierta conectada al salón y al comedor, con acceso directo a la terraza y la piscina. Cada propiedad cuenta con un solárium en la azotea, que ofrece vistas panorámicas a la montaña o al mar y la opción de instalar un jacuzzi. Acabados de alta calidad y eficiencia energética BREEAM Estas villas están construidas según los estándares de certificación BREEAM, lo que garantiza un excelente rendimiento energético y responsabilidad medioambiental. Las especificaciones premium incluyen: Ventanas de aluminio de doble acristalamiento con rotura de puente térmico y persianas eléctricas Aire acondicionado por conductos totalmente instalado Puerta de acceso motorizada para vehículos Piscina privada y jardín paisajístico Cocina moderna de PORCELANOSA equipada con electrodomésticos Baños de diseño con muebles, espejos y duchas a ras de suelo Gres porcelánico de PORCELANOSA Ubicación privilegiada cerca de playas, golf y tiendas Finestrat es una encantadora localidad situada entre las montañas y el mar, que ofrece tranquilidad a pocos minutos de la animada Benidorm. La zona combina la belleza natural con excelentes infraestructuras, colegios internacionales, restaurantes y centros comerciales. Distancias a puntos de interés clave Playas de Benidorm 3,5 km Centro comercial La Marina 1 km Puig Campana Golf 3 km Casco antiguo de Benidorm 4 km Aeropuerto de Alicante 55 km Acceso a la autopista A7 2 km Viva el sueño mediterráneo en Finestrat Estas villas ofrecen el equilibrio perfecto entre lujo, naturaleza y conectividad en la Costa Blanca. Póngase en contacto con nosotros hoy mismo para recibir más información o concertar una visita privada a estas excepcionales viviendas de nueva construcción en Finestrat.
