Venta de villa en Aspe pedanias, Pedanías oeste

Referencia:

N8933

Villa en venta

Aspe pedanias, Pedanías oeste MAPA DE PROPIEDADES

403.500 € (impuestos y gastos no incluídos)
164 m2
3
2
Descripción

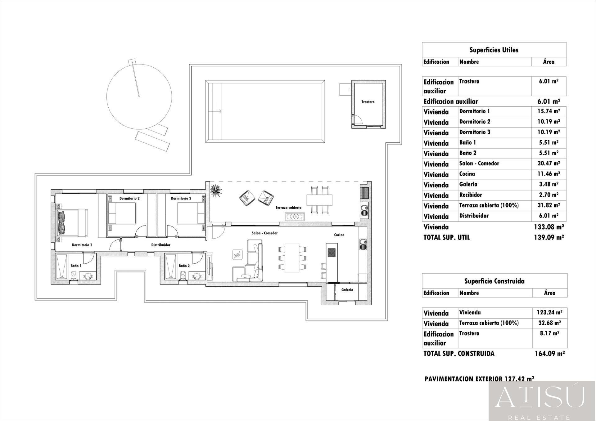
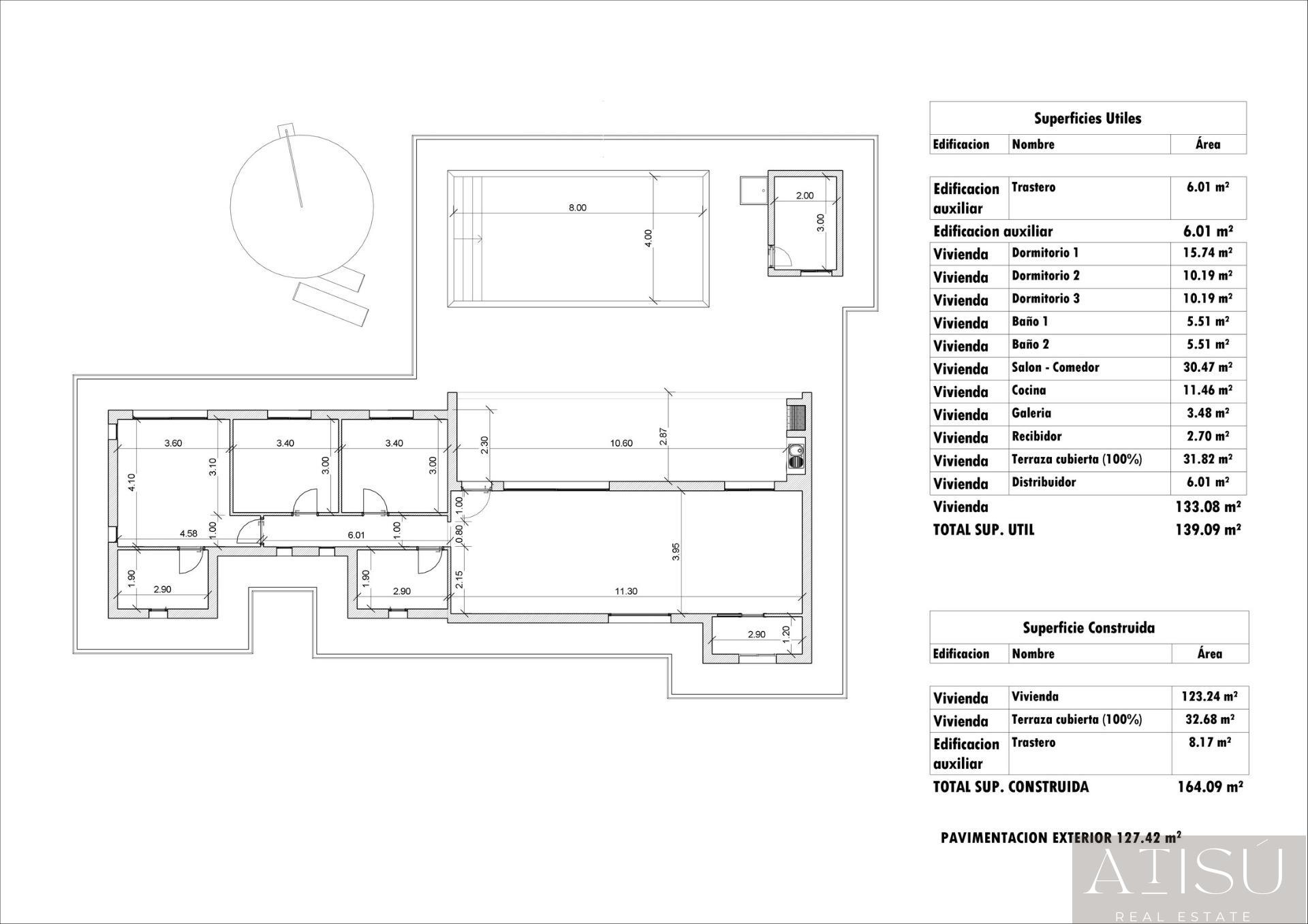
Villa en Pedanías oeste, con 164 m² construidos, 13172 m² metros de parcela, 3 dormitorios, 2 baños, piscina privada

Villas de obra nueva situadas en término de Aspe. Villas de obra nueva con varios modelos a elegir entre 2, 3 o 4 dormitorios, de una o 2 plantas y construidas con losa o con estructura: dependiendo del modelo y la parcela elegida, se calculará el precio exacto. Todas las villas se construyen en parcelas rústicas de más de 10.000 m2 de los cuales se vallarán unos 2.500 m2. Las villas disponen de cocina americana con el salón, armarios empotrados, piscina privada, porche, trastero y plaza de parking exterior. Hay varias parcelas a elegir, para el cálculo del precio se ha considerado una parcela con un precio de 77.500 eur (si se elige otra parcela, se pagará o abonará la diferencia según el precio de la misma). Realizada en régimen de auto promoción, entrega en unos 12 meses desde la concesión de la licencia. Si busca un entorno tranquilo, cerca de pueblos típicos españoles alejados de la masificación turística, rodeado de montañas, con una amplísima parcela y a unos 30 minutos del mar, esta es su casa. Aspe es un típico pueblo español con todos los servicios para el día a día, rodeado de montañas y con varios parajes naturales en las cercanías donde se pueden hacer rutas de senderismo o mountain bike. Situado a 25 km de la playa, a 9 km de Elche y a unos 20 km del aeropuerto de Alicante.

Características
Inmueble
  • 164 M2 Construidos
  • 13172 M2 Metros de parcela
  • 3 Dormitorios
  • 2 Baños
Edificio
Extras
  • Piscina privada
Certificado energético
certificado energético
Simulador de hipoteca
Precio inmueble
Impuestos y gastos
Precio + gastos
0 €
Ahorro aportado
Plazo en años
Interés
Tu cuota mensual
0
Estos resultados son orientativos, calculados con los números que has introducido.
MAPA DE PROPIEDADES
Otros inmuebles que podrían ser de su interés

Atisú Inmobiliaria, agencia especializada en la Costa Blanca

Esta página web utiliza cookies

Una cookie informática es un pequeño archivo de información que se guarda en tu navegador cada vez que visitas nuestra página web.

Nuestra página web utiliza entre otras, cookies técnicas que son imprescindibles para que la página pueda funcionar. Las tenemos activadas por defecto, pues no necesitan de tu autorización.

Más información en nuestro apartado POLÍTICA DE COOKIES.