For Sale - Beautiful Townhouse for Sale in El Campello Space, Comfort, and Ideal Location
We present this magnificent four-story townhouse, located in a quiet and well-connected residential area of El Campello. An ideal home for families who value comfort, space, and proximity to all services: schools, shopping centers, green areas, public transportation, just 1.5 km from the beach and only a few minutes from the town center.
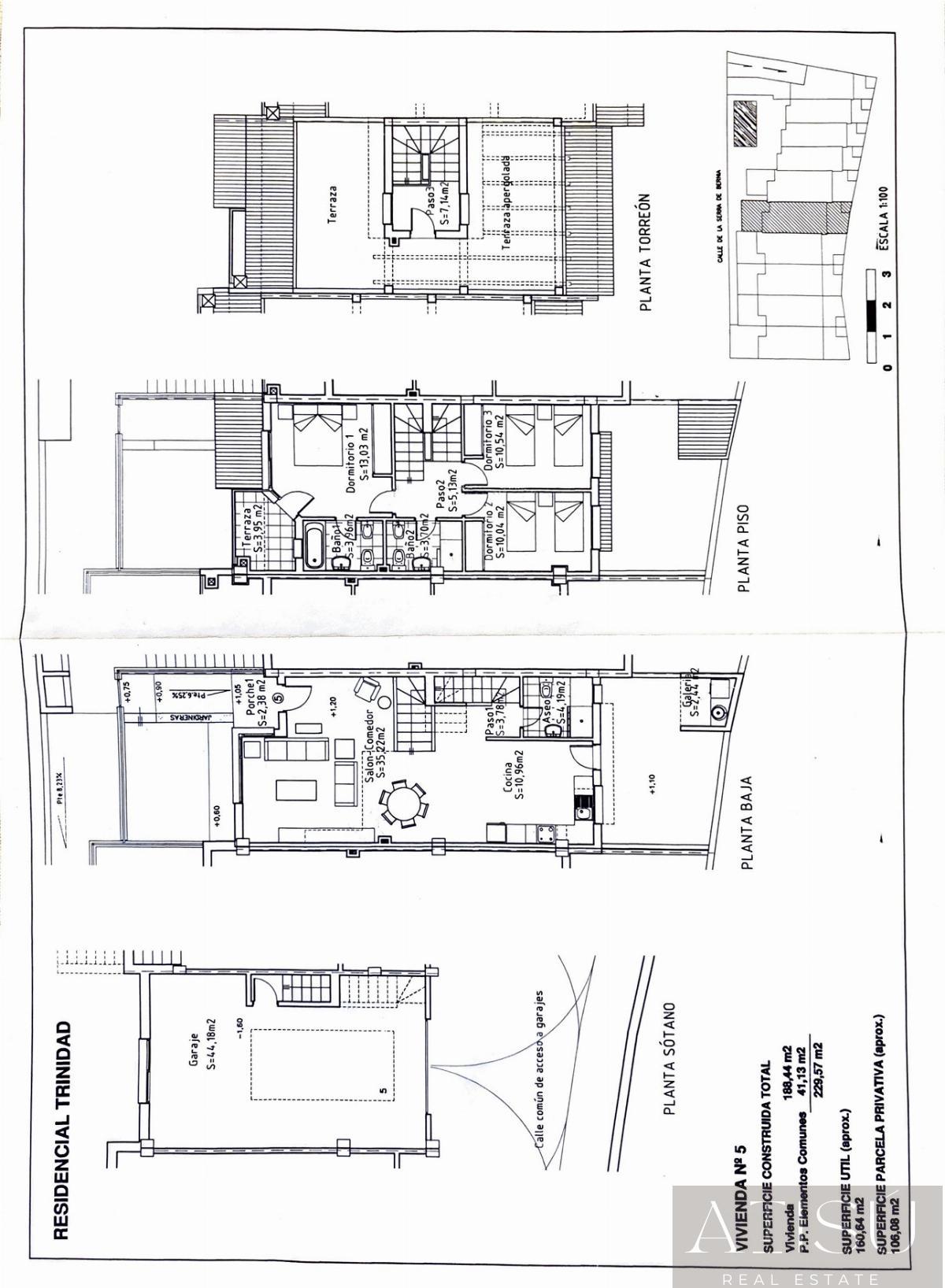
With a built area of 229 m², this property is in excellent condition and ready to move in. Its layout is functional and balanced, maximizing space usage and natural light.
Upon entering the property, you are greeted by a hallway leading to a spacious living-dining room of over 35 m², with direct access to a pleasant front terrace, perfect for an outdoor dining area or relaxation space. On this same floor, there is a fully equipped independent kitchen, with a serving hatch and access to a second rear terrace with a gallery, as well as a courtesy bathroom for added convenience.
The first floor features the master bedroom with an en-suite bathroom, as well as two additional bright bedrooms with built-in wardrobes. These share a full bathroom.
The top floor, or solarium, has two private terraces, one facing north with mountain views and the other facing south with sea views, providing a versatile and pleasant space to enjoy the outdoors year-round.
In the basement, the property has a closed garage with space for two vehicles, as well as a large storage room.
Built in 2008, this home features high-quality materials: marble floors, oak interior carpentry, PVC windows, and mosquito nets on all windows. It also has ducted air conditioning in the main rooms and individual heating. It is part of a private development with a community pool, ideal for families with children.
In conclusion, this is a complete, functional, and perfectly located home that combines quality of life, comfort, and proximity to the sea.
Quality and Comfort Details:
Marble floors
Oak interior carpentry
PVC windows
Mosquito nets in all rooms and doors
Built-in wardrobes
Ducted air conditioning in all main rooms
Individual heating
Community pool
Property built in 2008
Complete orientation: north and south
Strategic Location:
The area offers excellent public transport links, including tram and bus lines, as well as quick access to national roads and highways. It is close to schools, supermarkets, shopping centers, sports facilities, and green areas, ensuring a comfortable and practical life year-round. Located just minutes from El Campello center and its beaches, this property represents an excellent investment or primary residence opportunity. A family-friendly, safe, and well-connected environment that provides quality of life all year round.
The information contained in this document is for informational purposes only, non-binding, and has no contractual value.
