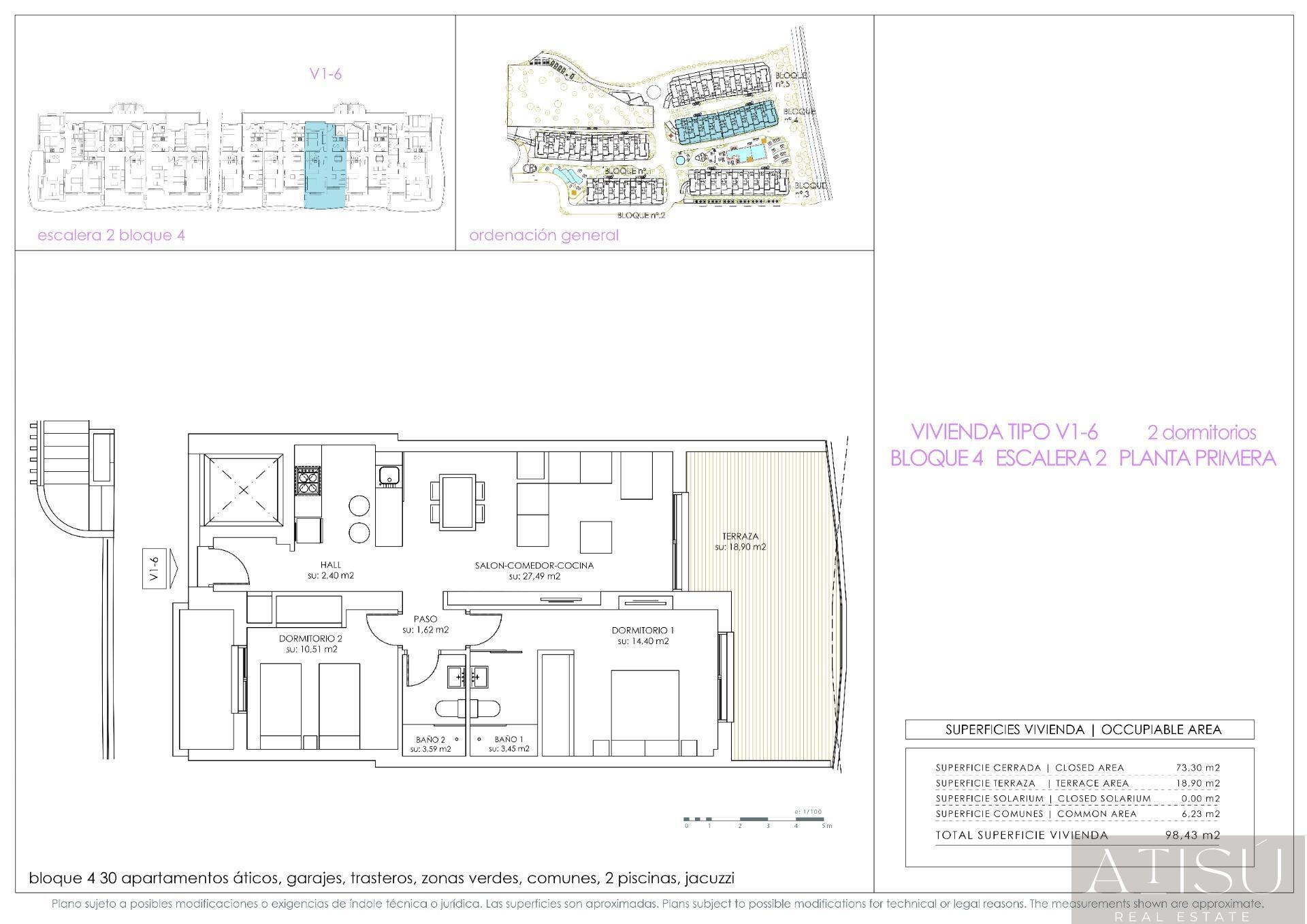
Apartamento en Playa flamenca, con 73 m² construidos, 2 dormitorios, 2 baños, piscina privada
RESIDENCIAL DE OBRA NUEVA EN PLAYA FLAMENCA !!! De un promotor de gran experiencia en la zona, estamos orgullosos de ofrecer este nuevo residencial recién lanzado a la venta a solo 500 m del mar en la popular zona de Playa Flamenca (Orihuela Costa). Residencial con bonitas piscinas comunitarias, jacuzzis y bonitos jardines comunes. Todos los servicios como supermercados, bares y restaurantes, etc. se encuentran a poca distancia en un lugar muy céntrico de Orihuela Costa. Amplia variedad de tipos para elegir: apartamentos de 2, 3 o 4 habitaciones. Pisos bajos con jardines privados o áticos con solarium privados. Todas las viviendas cuentan con plaza de garaje y trastero incluidos en el precio. El centro comercial Zenia Boulevard a 1 km y varios campos de golf como Villamartín, Campoamor a 5 km de este residencial lo convertirán en un lugar ideal para sus vacaciones o su vida permanente.
